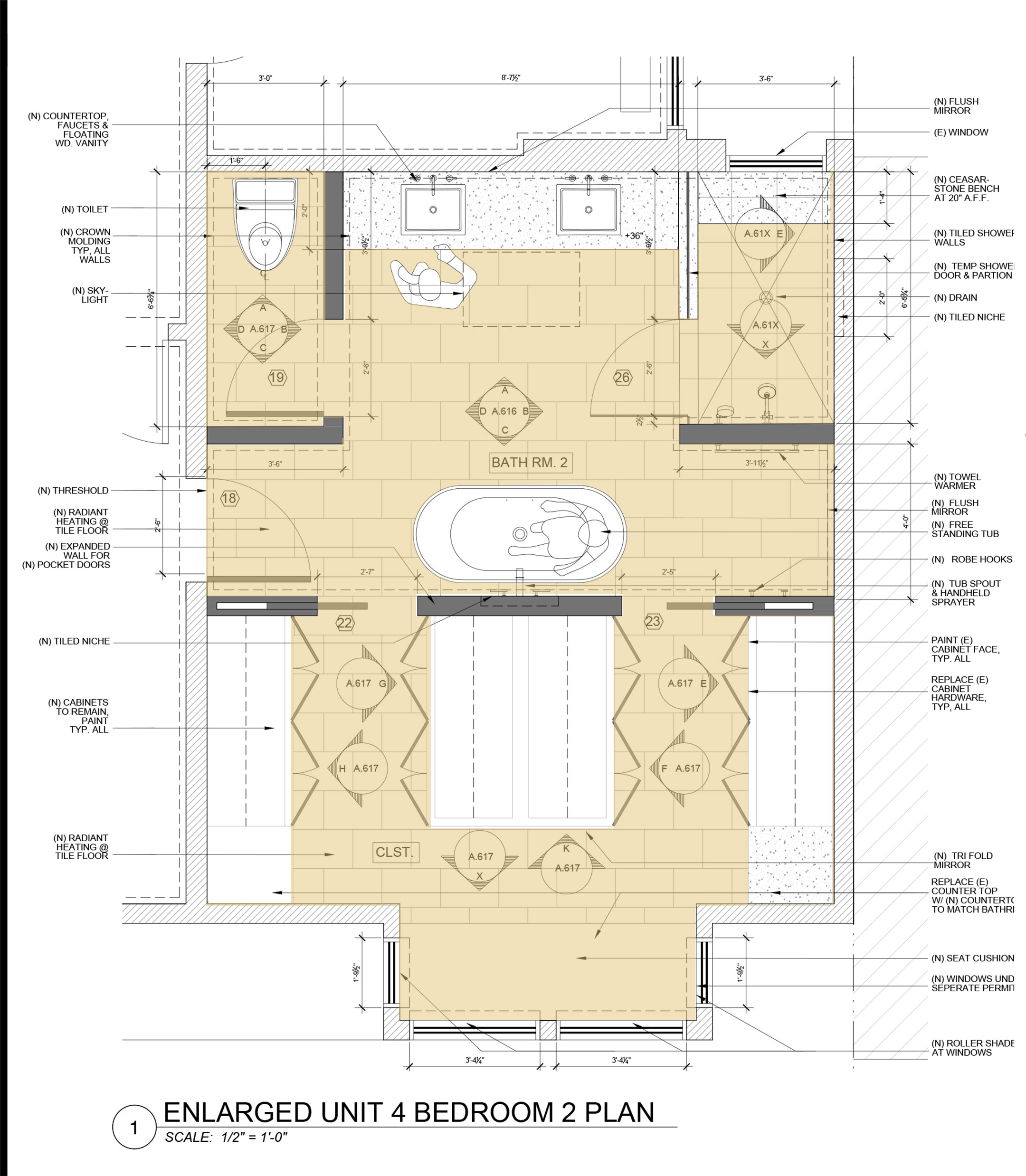
Project overview: THIS MULTIFAMILY RESIDENCE IN THE COW HOLLOW DISTRICT OF SAN FRANCISCO WAS DIVIDED INTO SEVERAL PHASES WHICH INCLUDED NEW WINDOWS THROUGHOUT, NEW EXTERIOR PAINT, 2 CANTILEVERED REAR DECKS, WHICH INCLUDED A VARIANCE FOR A REAR YARD SETBACK, RENOVATION OF UNIT 2 INLCUDING KITCHEN, 2 BATHROOMS AND BEDROOM REMODEL, RENOVATION OF OWNERS UNIT 4 INLCUDING KITCHEN , 2 BATHROOMS AND BEDROOM REMODEL. THE DESIGN WORKED CLOSELY WITH SEVERAL CONSULTANTS TAKING INTO ACCOUNT OWNERS PREFERENCE AND TASTE.
Steve Bodner, LEED A.P email: steve@stevebodner.com phone: 415.683.1453









