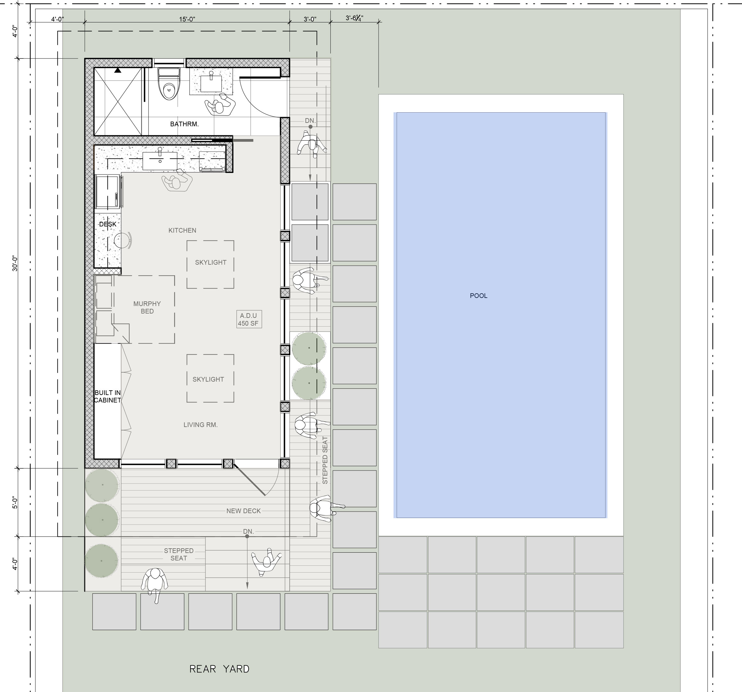
PROJECT OVERVIEW: THIS PROPOSAL FOR A REAR YARD NEW ACCESSORY DWELLING UNIT IN SAN ANSELMO BROUGHT FORWARD A 450 SF UNIT FILLED WITH NATURAL LIGHT AND SHARED SPACES. THE COMBINED LIVING AND SLEEPING SPACE WERE DESIGNED WITH A MURPHEY BED IN A WALL OF STORAGE WHILE THE OUTDOOR SPACE HAS SHARED LANDSCAPING AND SEATING AREAS AROUND THE EXISTING POOL.
Steve Bodner, LEED A.P email: steve@stevebodner.com phone: 415.683.1453





