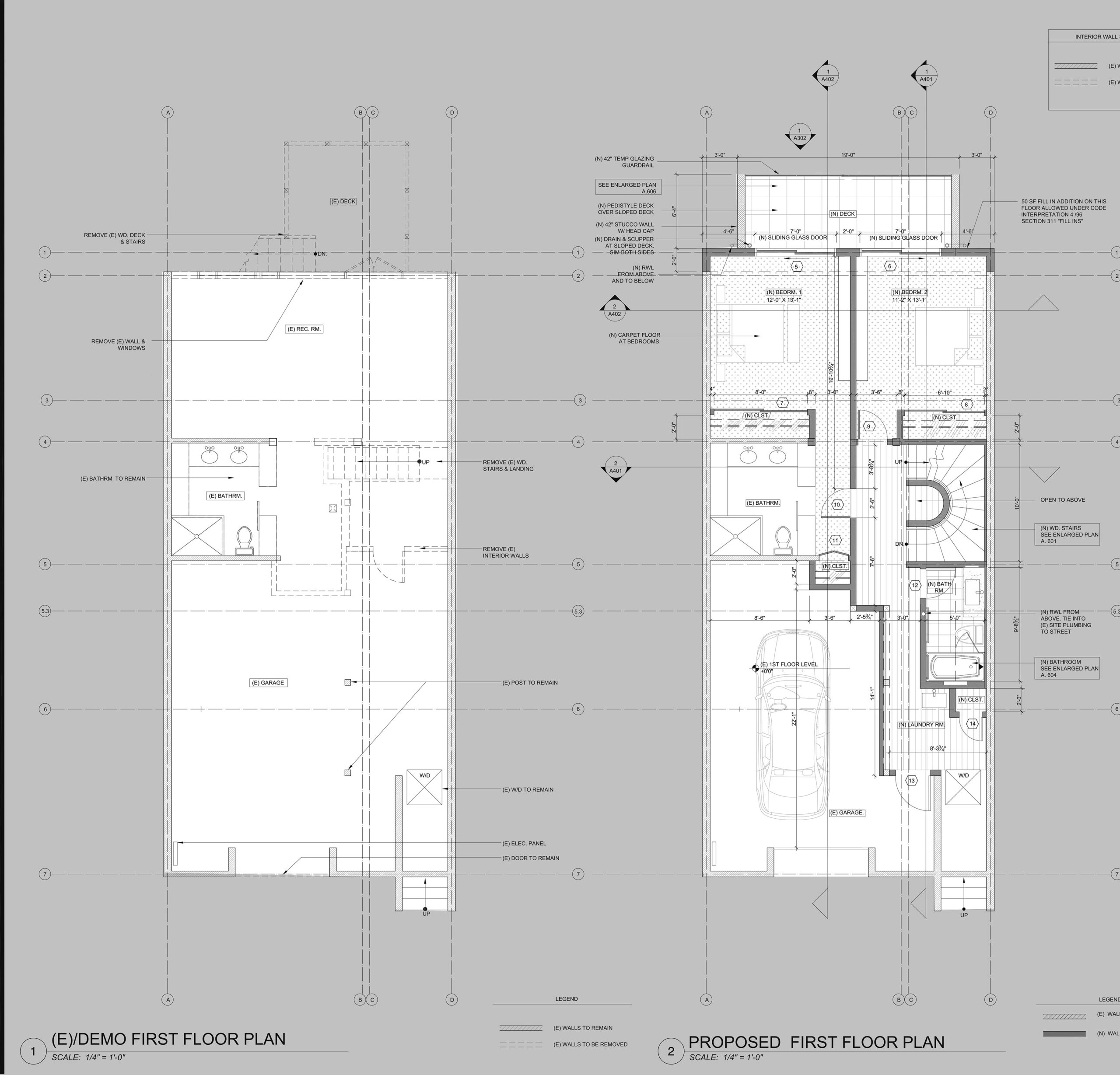
PROJECT OVERVIEW: THIS PROPOSAL FOR A SAN FRANCISCO HILLSIDE RESIDENTIAL REMODEL WAS CENTERED AROUND A NEW CURVED STAIRCASE CONNECTING A NEW EXCAVATED LOWER LEVEL, GARAGE LEVEL WITH 2 NEW BEDROOMS + BATHROOM & UPPER LEVEL WITH NEW KITCHEN AND BATHROOM. 2 LEVLS OF CATILEVERED DECKS PROJECT OFF THE REAR ELEVATION
Steve Bodner, LEED A.P email: steve@stevebodner.com phone: 415.683.1453


